-
- Erschienen: 23.12.2011 | Ausgabe: Nr. 1 (Januar/Februar 2012)
- Details zum Test
ohne Endnote
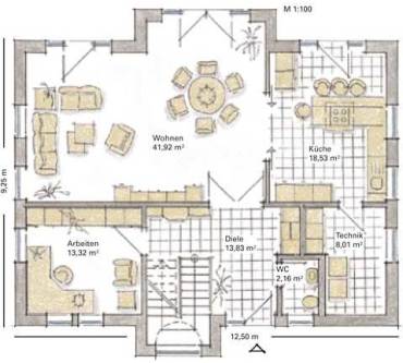
„... Das Kundenhaus ‚Carina‘ bietet viel Platz für bis zu sechs Personen und bedient sich einer funktionalen wie auch klassischen Grundrissaufteilung - ‚unten wohnen, oben schlafen‘. ...“







